12 Bader Rise, Mattersey Thorpe, Doncaster, DN10 5JA














12 Bader Rise, Mattersey Thorpe, Doncaster, DN10 5JA
**SUPERB BUNGALOW!** This property offers generous living space inside and out. **LARGE GARDEN AND DETACHED GARAGE!** **CALL NOW TO VIEW!**
SUMMARY
**NOT TO BE MISSED!** We are pleased to present this beautifully presented bungalow with two bedrooms, two bathrooms and also featuring a private driveway and nicely presented rear garden.
INTERIOR
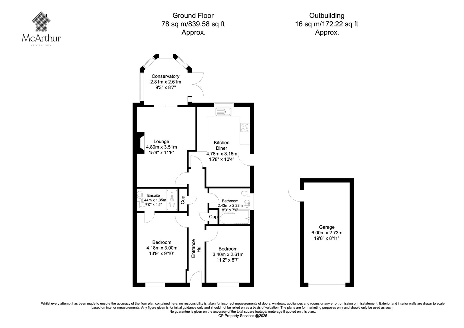
As you enter the bungalow through the door you will find two bedrooms residing to the front. These rooms are both spacious double bedrooms with well-presented decoration to both. The master bedroom offers an attached ensuite with superb new decoration and features a large shower with fixed glass screen as well as a white integrated vanity unit with cupboard storage and modern chrome fixtures. There is also a main bathroom featuring a bath, w/c and sink.
Towards the back of the bungalow you will find a beautifully decorated and well-presented lounge. This space includes a lovely electric fireplace and surround and leads directly through sliding patio doors into the conservatory. To the other side you will find the kitchen/diner which offers ample cabinetry/storage options as well as integrated fridge/freezer and washing machine. There is also a generously sized space for dining in this open plan room.
EXTERIOR
The bungalow resides on a fantastic plot with large gated driveway allowing for parking for multiple vehicles. At the front you have a low maintenance front garden area decorated with some planting and mature shrubbery. At the rear you will also find a nicely landscaped garden area which is split into two sections. There is a good sized patio area with ample space for seating, a separate lawned area and further paved section at the back. Through a further gate you are led into a further garden area perfect for planting and enjoying the outside. You will also benefit from a separate detached garage which offers brilliant external storage.
**CALL TODAY!!**
1. MONEY LAUNDERING REGULATIONS: Intending purchasers will be required to meet HMRC money laundering regulation standards. Checks will be made by McArthur Estate Agency at a later stage and we would ask for your co-operation in order that there will be no delay in agreeing the sale.
2. General: While we endeavour to make our sales particulars fair, accurate and reliable, they are only a general guide to the property and, accordingly, if there is any point which is of particular importance to you, please contact the office and we will be pleased to check the position for you, especially if you are contemplating travelling some distance to view the property.
3. The measurements indicated are supplied for guidance only and as such must be considered incorrect.
4. Services: Please note we have not tested the services or any of the equipment or appliances in this property, accordingly we strongly advise prospective buyers to commission their own survey or service reports before finalising their offer to purchase.
5. THESE PARTICULARS ARE ISSUED IN GOOD FAITH BUT DO NOT CONSTITUTE REPRESENTATIONS OF FACT OR FORM PART OF ANY OFFER OR CONTRACT. THE MATTERS REFERRED TO IN THESE PARTICULARS SHOULD BE INDEPENDENTLY VERIFIED BY PROSPECTIVE BUYERS OR TENANTS. NEITHER MCARTHUR ESTATE AGENCY NOR ANY OF ITS EMPLOYEES OR AGENTS HAS ANY AUTHORITY TO MAKE OR GIVE ANY REPRESENTATION OR WARRANTY WHATEVER IN RELATION TO THIS PROPERTY.
Owning a home is a keystone of wealth… both financial affluence and emotional security.
Suze Orman